Dom wolnostojący - wysoki standard Grzybowo


Freistehendes Haus in einer ruhigen Lage bei Kolberg - 1,3 km von der Ostsee

Grzybowo / Kołobrzeg

1.598.000 zł
 

374.000 €

Numer ogłoszenia: 78100002

Nowy energooszczędny dom w cichej okolicy

Mam przyjemność zaprezentować nowy, wyjątkowy dom wolnostojący w pobliżu Kołobrzegu (2km), bardzo blisko morza (1300m). Dom ma powierzchnię 137m2 i znajduje się na działce o powierzchni 1000m2. Dom posiada nie mniej niż 5 pokoi/sypialni, salon z kuchnią oraz 2 łazienki.

Jakość materiałów użytych do budowy i precyzja wykończenia znacznie przewyższają te stosowane przez lokalnych budowniczych, dzięki czemu nowi właściciele będą się nim cieszyć przez wiele lat. Dom został ukończony w 2024 roku.

Jest to dom energooszczędny o klasie energetycznej A, ogrzewany powietrzną pompą ciepła Panasonic (roczne rachunki nie przekraczają 1500 zł) i wentylowany z rekuperacją. Konstrukcja została zbudowana przy użyciu ciężkiego szkieletu drewnianego, a za budowę odpowiedzialna była znana w regionie firma ITS. Na podstawie badań przeprowadzonych we współpracy z Politechniką Koszalińską firma ta opracowała najbardziej energooszczędny przekrój ścian, dzięki czemu zapotrzebowanie na energię pierwotną naszego budynku nie przekracza 61 kWh.

 Do ocieplenia domu wykorzystano wełnę celulozową oraz produkty marek Steico i Fermacell (gwarantujących znakomitą izolację cieplną i akustykę budynku). Dodatkowo w salonie wybudowany został komin, który może posłużyć do budowy kominka lub podłączenia innego źródła ciepła w przyszłości (z uwagi na bardzo niskie rachunki, nie zdecydowaliśmy się na jego budowę). Na konstrukcję domu jego wykonawca udzielił 28-letniej gwarancji, co niewątpliwie podkreśla jakość jego wykonania i zastosowanych materiałów.

Wnętrze domu zostało zaprojektowane w nowoczesnym stylu marynistycznym, co ma dodatkowo podkreślać jego wspaniałą lokalizację. Przy jego wykończeniu zastosowano materiały topowych producentów (Porta, QuickStep, Grohe, Egger). Sam dom jest gotowy do zamieszkania i nie wymaga żadnych nakładów finansowych, a wszystkie elementy wyposażenia są praktycznie nowe i nie noszą śladów zużycia.

Dom znajduje się w zachodniej (miejskiej) części Grzybowa, co gwarantuje ciszę i spokój od gwaru panującego w turystycznej części miejscowości. W zeszłym roku gmina przeprowadziła kompleksowy remont ulicy Słonecznej, dzięki czemu do budynku prowadzi wybrukowana droga oraz chodnik, a w ciągu ulicy zbudowano kanalizację deszczową i zainstalowano oświetlenie.

Odległość do morza to tylko 1300m, a sama plaża jest bardzo szeroka i zdobyła nagrodę Błękitnej Flagi. W rejonie znajduje się wiele ścieżek rowerowych i ścieżek do pieszych wędrówek. W najbliższej okolicy znajduje się supermarket (800m), apteka i przystanek autobusowy.

Powierzchnia: 137 m²
Liczba pokoi: 6
Rodzaj zabudowy: wolnostojący
Stan wykończenia: do zamieszkania
Rynek: wtórny
Liczba pięter: 1 piętro
Rok budowy: 2023
Okna: plastikowe
Dach: skośny
Pokrycie dachu: dachówka
 

Cena: 1.598.000 zł


Ogłoszenie to nie stanowi oferty handlowej w rozumieniu przepisów prawa.

Prosimy o kontakt telefoniczny pod numerem + 48 608401040.

 

Objekt ID 78100002
Ein Haus, das hohen Ansprüchen genügt und nur ca. 1,3 km von der Ostsee entfernt ist

Einfamilienhaus in der Nähe von Kolobrzeg (2km), ganz in der Nähe des Meeres (1300m).  Das Haus mit einer Fläche von 137m2 befindet sich auf einem Grundstück von 1000m2. Das Haus hat nicht weniger als 5 Zimmer/Schlafzimmer, ein Wohnzimmer mit Küche und 2 Badezimmer.

Das Haus wurde nach eigenen Bedürfnissen auf der Grundlage des Projekts Dom w Borówkach (GN) entworfen und gebaut. Die Qualität der für den Bau verwendeten Materialien und die Präzision der Ausführung übertreffen bei weitem die von lokalen Bauträgern verwendeten Materialien, so dass die neuen Eigentümer viele Jahre lang Freude an dem Haus haben werden. Das Haus wurde im Jahr 2024 fertiggestellt.

Es handelt sich um ein energieeffizientes Haus der Energieklasse A, das mit einer Panasonic-Luftwärmepumpe beheizt (die jährlichen Rechnungen übersteigen nicht 1500 zł) und mit Rekuperation belüftet wird. Der Baukörper des Hauses wurde in schwerer Holzrahmenbauweise errichtet, und die regional angesehene Firma ITS war für den Bau des Hauses verantwortlich. Auf der Grundlage von Forschungen, die in Zusammenarbeit mit der Technischen Universität Koszalin durchgeführt wurden, entwickelte dieses Unternehmen den energieeffizientesten Wandabschnitt, dank dessen der Primärenergiebedarf unseres Gebäudes 61 kWh nicht übersteigt. Für die Dämmung des Hauses wurden Zellulosewolle sowie Produkte der Marken Steico und Fermacell verwendet (die eine hervorragende Wärme- und Schalldämmung des Gebäudes gewährleisten). Außerdem wurde im Wohnzimmer ein Schornstein gebaut, der in Zukunft für den Bau eines Kamins oder den Anschluss einer anderen Wärmequelle genutzt werden kann (aufgrund der sehr niedrigen Rechnungen haben wir uns entschieden, keinen Kamin zu bauen). Für den Bau des Hauses wurde vom Bauunternehmen eine Garantie von 28 Jahren gewährt, was zweifellos für die Qualität der Verarbeitung und der verwendeten Materialien spricht.

Das Innere des Hauses wurde in einem modernen nautischen Stil gestaltet, um die großartige Lage des Hauses zu unterstreichen. Für den Ausbau wurden Materialien von Spitzenherstellern (Porta, QuickStep, Grohe, Egger) verwendet.  Das Haus selbst ist sofort bezugsfertig und erfordert keinerlei finanzielle Aufwendungen, und alle Einrichtungsgegenstände sind praktisch neu und weisen keinerlei Gebrauchsspuren auf.

Das Haus verfügt über intelligente Installationen, die eine Fernsteuerung über ein Mobiltelefon ermöglichen

Alle Fenster sind mit Jalousien ausgestattet, die elektrisch und vom Handy aus gesteuert werden können. Die Heizung wird über die mobile Anwendung von Panasonic gesteuert, die es ermöglicht, das Haus kurz vor der Ankunft zu heizen.

Der Hauswirtschaftsraum wurde mit einem Garagentor ausgestattet, das entweder über eine Fernbedienung oder über ein Smartphone gesteuert werden kann, so dass es möglich ist, das Haus aus der Ferne zu öffnen, z. B. für einen Kurier.

In der gesamten Immobilie wurde eine Alarmanlage installiert, die über eine mobile App scharf/unscharf geschaltet werden kann, die Umgebung des Gebäudes wird mit 6 hochauflösenden Kameras überwacht und kann aus der Ferne eingesehen werden. Das Gebäude ist mit einem Rauchmelder und einem Überschwemmungsmelder ausgestattet, der im Falle eines Unglücksfalls den Alarm auslöst und die Eigentümer per SMS benachrichtigt. Am Eingang ist eine Video-Gegensprechanlage installiert, über die das Tor aus der Ferne geöffnet werden kann und die es dem Eigentümer ermöglicht, mit einem unerwarteten Besucher zu sprechen.

Das Haus ist für die Installation von Photovoltaikanlagen vorbereitet (spezielle Dachziegel für die Installation, Kabeldurchgänge vom Dach zum Stromkasten). Das Gebäude ist an das Glasfaserkabel angeschlossen, was ein großer Vorteil ist, vor allem in der Ferienzeit, wenn die örtlichen Mobilfunksender mit Touristen überlastet sind.

Das Haus befindet sich auf einem großen Grundstück, das von den zukünftigen Eigentümern geebnet und für die Gartengestaltung vorbereitet wurde. In der Nachbarschaft sind viele neue Häuser gebaut worden, und die Nachbarn selbst sind überaus sympathisch und äußerst hilfsbereit. Das Haus blickt auf unbewohnte Felder, die vor allem im Frühherbst einen wunderschönen Anblick bieten. Die Immobilie liegt im westlichen (städtischen) Teil von Grzybowo, was Ruhe und Erholung vom Trubel des touristischen Teils des Dorfes garantiert.

Die Entfernung zum Meer beträgt nur 1.300 m, und der Strand selbst ist sehr breit und wurde mit der Blauen Flagge ausgezeichnet. In der Umgebung gibt es viele Rad- und Wanderwege. In unmittelbarer Nähe gibt es einen Supermarkt (800m), eine Apotheke und eine Bushaltestelle.  

ERDGESCHOSS:

- (1.1) Vorraum 4,01m2
- (1.2) Badezimmer 4,76m2
- (1.3) Wohnzimmer mit Küche 30,49m2
- (1.4) Abstellraum 4,85m2
- (1.5) Diele 3,00m2
- (1.6) Hauswirtschaftsraum/Garage 11,00m2
- (1.7) Zimmer/Büro 13,57m2

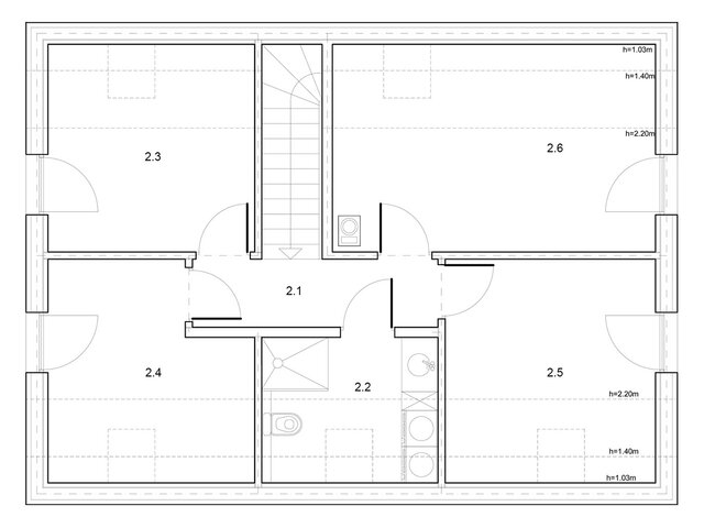
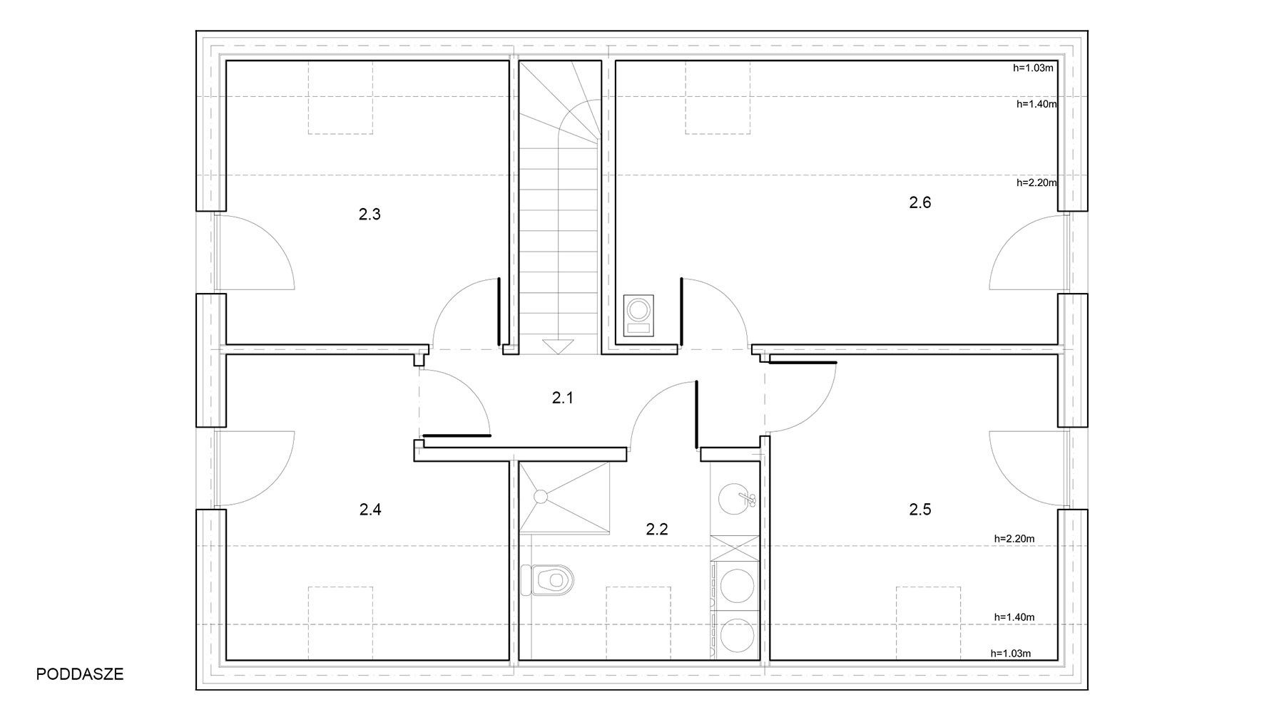
1. OG

- (2.1) Korridor 4,59m2
- (2.2) Bad 7,05m2
- (2.3) Zimmer 1/Schlafzimmer 11,81m2
- (2.4) Zimmer 2/Schlafzimmer 11,22m2
- (2.5) Zimmer 3/Schlafzimmer 12,94m2
- (2.6) Zimmer 4/Schlafzimmer 18,46m2

 ZUSÄTZLICH:

- isolierter Dachboden, der über eine Falttreppe zu erreichen ist und zusätzlichen Stauraum bieten kann

Preis 379.000 €  (keine Käuferprovision)

(Das Angebot stellt kein kommerzielles Angebot im Sinne des Gesetzes dar)

Beim Kauf sind wir Ihnen gerne behilflich, wir betreuen Sie zweisprachig. Es ist komplikationslos möglich, polnische Immobilien zu erwerben. Der Notarvertrag wird mit vereidigten Dolmetschern vorgenommen. Die Nebenkosten in Polen sind sehr preiswert. Lassen Sie sich beraten.

Zapraszam na prezentację po uprzednim kontakcie telefoniczny +48 608 40 10 40

Treść niniejszego ogłoszenia nie stanowi oferty handlowej w rozumieniu Kodeksu Cywilnego. Treść ma charakter informacyjny i zalecamy ich osobistą weryfikację. Kontaktując się z biurem Klient wyraża zgodę na przetwarzanie danych osobowych zgodnie z przepisami ustawy z dnia 29 sierpnia 1997 roku o ochronie danych osobowych / Dz.U.Nr. 133 poz. 883/. Klientowi przysługuje prawo do wglądu do swoich danych osobowych i ich aktualizacji.